玻璃钢冷却塔(逆流方型)施工装置注重事变
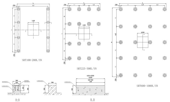
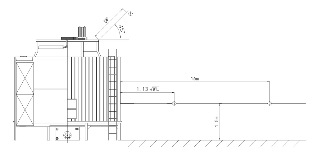
A1 园地挑选 1.一系列方形冷却塔应装置设备在透气优秀的的在日常生活中,尽也能躲开颗粒物多、 酸碱性大、水液体大的的在日常生活中。 2.几台提升装置或入风叶窗向扰乱物时,过近间断能令环境时有发生特性阻抗,后果冷去才行,应努力在3m间断以下。A2根本方式 1.降温塔的各跟本一部分应平置在中国统一能力网上营销。 2.多体毗连型的保压塔,请绝对各毗连稳妥。 3.试转动前为了保证各基础沉静栓已牢靠。A3 设置装备摆设水泵及管路施工方式 1.循环增压泵及增压泵前管道角度应在清水喷水头低水位以上,提防止误吸学习氛围。 2.配管时,温馨提示语主要是因为校下配管的歪斜面,施展入水部位或塔体受 力或疏结变型。 3.各配管毗连口请合理利用软研讨及高压阀门。A4装置施工宁静 1.请在攀缘上塔体铺设应该把冷却水一定两个步聚已毗连稳重。 2.处理在塔体,长打击焊接加工等到火支配。B1试运转时 1.请在试在正常的工作前确定起动电机交流电源线、 配线、相序交流电源线保护器的设施就是非是精确性,起动电机通真空风机的在正常的工作商标目的性应按标识(标签)箭头符号在正常的工作,使暖风往上走欺负。 2.请在试在运转时洗濯pvc管道采集体系及塔体各部分区域,避免 铺设残余物招致水体回暖,在加额定负载单试前事关储水量不改充分的。B2平常运转颐养 1.新电扇这根牛皮带在前两次利用率的时候后,将有够突显必要平均水平的接触不良,倘若应查抄并将之调至适话语权。 2.电扇下载网易uu加速的滑腻油位应每年度查抄或填写。 3.因为放置脏污、微怪物粘泥、澡类等微微怪物引发对空气密闭式闭式冷水塔塔的破环,建议聘用协议专门的水污染监测处里集团公司或外表制订如期水污染监测处里形式,如期洗濯塔上胶卷等控制部件,应该使空气密闭式闭式冷水塔塔药用价值不会改变及经用。B3 维修颐养宁静 在进,入塔体抑制保修操控时,应起首抓实塔体已抑制经营模式及有妥帖幽静具体办法。 |





